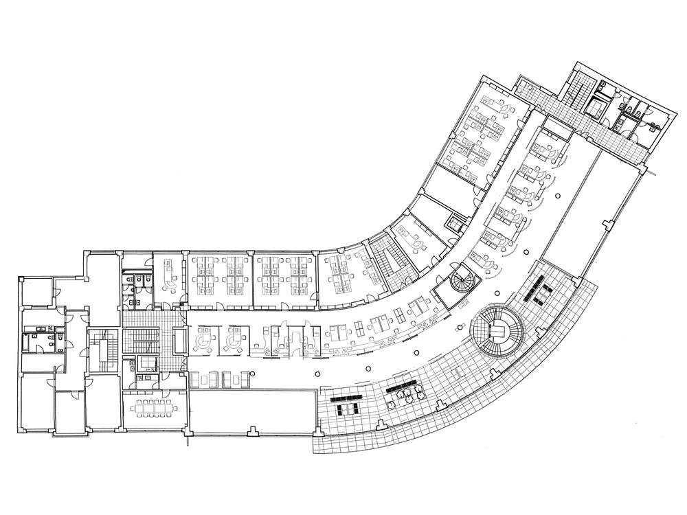
Sídlo bankovní instituce je segmentově rozloženo mezi dvě frekventované městské ulice. Kopíruje tvar křižovatky a proud dopravy v její blízkosti. Budova byla koncipována jako jeden volný halový prostor vzájemně se prolínající v jednotlivých podlažních úrovních a vytvářející tak zajímavé průhledy od nejnižší části vstupu až po centrální světlík ve stropní konstrukci. Pracoviště jsou volně rozmístěna na jednotlivých galeriích, administrativní zázemí je odděleno do samostatných kanceláří. Výrazným architektonickým prvkem bankovní haly je kruhové schodiště doplněné panoramatickým proskleným výtahem. Jeho situování v blízkosti skleněné fasády umožňuje vnímat dynamiku budovy, zejména pak po setmění, kdy je celý interiér rozsvícen a budova se tak stává transparentní do veřejného prostoru.
Vzhledem k důlní činnosti, která Kutnou Horu tak proslavila, neexistuje v centru města lokalita, kde se nesetkáme s jejími pozůstatky. Z důvodu zajištění bezpečnosti a stability celé konstrukce budovy spořitelny je její mohutný skelet ukotven pomocí hlubinného založení a ještě pojištěn masivní betonovou deskou.
Jiří Krejčík
Realizace: 1995
Fotografie: Miroslav Beneš








