Komenského ulice v centru města je řešena v kontextu revitalizace Velkého náměstí. Téměř 400 m dlouhá linie ulice na patě historického centra, ve velice dobré docházkové vzdálenosti k Velkému náměstí, má potenciál výrazně navýšit svoji parkovací kapacitu pro přesun parkovacích stání z Velkého náměstí. Zároveň má potenciál vytvořit kultivovaný městský prostor pro chodce, cyklisty i automobilovou dopravu.
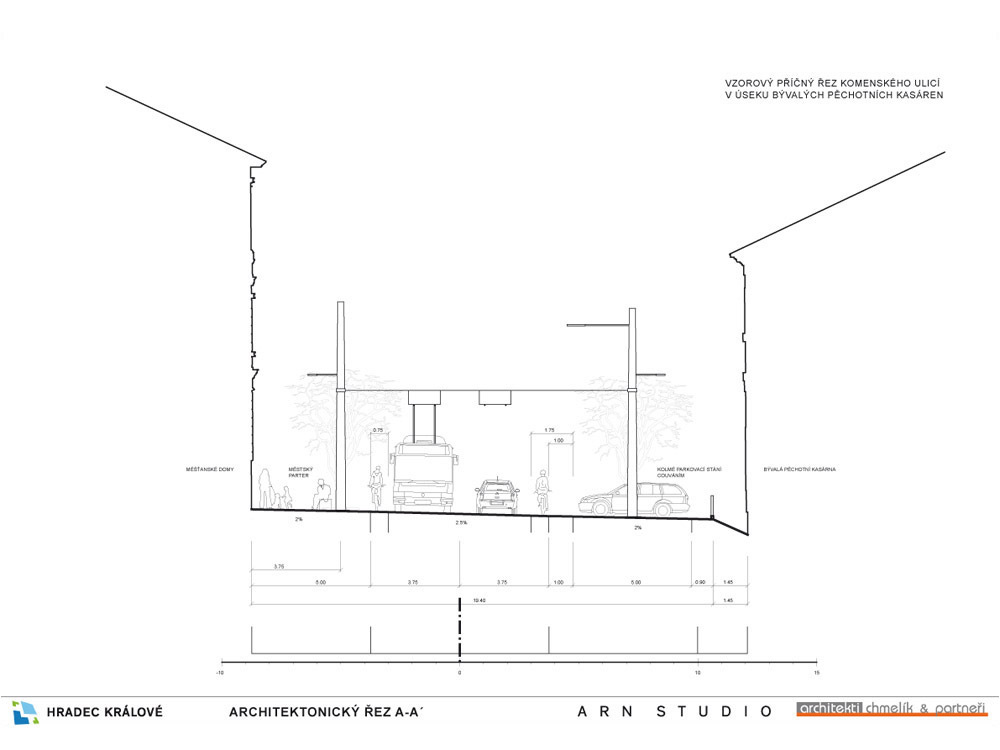
Uspořádání dopravy v klidu je zásadním podkladem pro celý prostorový koncept. Řešení s kolmým parkovacím stáním po jedné straně ulice umožňuje docílit maximální možné kapacity parkovacích stání při jejich úsporné koncentraci do jedné linie. Toto řešení s sebou přináší vytvoření volného pobytového parteru pro pěší na patě historického centra v přímé vazbě na Velké náměstí.
Návrh je řešen v duchu myšlenky moderního vkladu do historického prostředí. Povrch chodníků včetně komunikace bude řešen v jedné úrovni přecházející bez bariér kontinuálně od fasády k fasádě. Příčné přechody propojují obě strany ulice a tvoří „náměstí“ před významnými místy. Historická podoba ulice s alejí se do návrhu propisuje rytmicky rozmístěným stromořadím po obou stranách. Celá Komenského ulice bude v režimu 30 km/hod. a budou se zde kombinovat různé druhy dopravy. V budoucnu by měla přejít do režimu sdílené zóny.
ARN STUDIO – Jiří Krejčík, Michal Krejčík
architekti chmelík & partneři – Jaromír Chmelík, Ilona Kaplanová
spolupráce: Tereza Novosadová
odborná spolupráce: Pavel Hodek, Vojtěch Novotný
Návrh: 2024



















