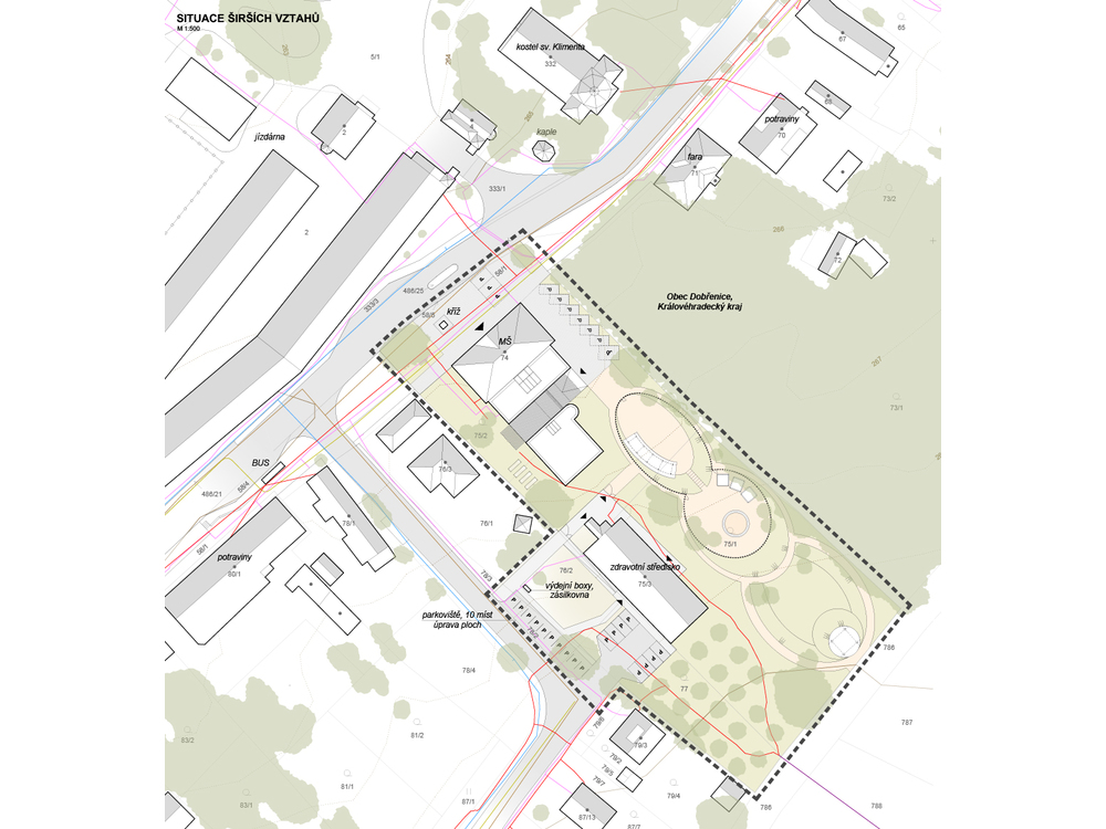
Přeměnu bývalé základní školy v Dobřenicích na multifunkční objekt, obecní dům, v našem návrhu vnímáme v širším kontextu obce. Oprava a otevření budovy bývalé školy je významným tématem. Zastřešující myšlenkou, ke které chceme v našem návrhu směřovat je vytvoření nového centra obce. Historicky, budovy škol často zaujímaly pozici ústředních staveb. Byly umísťovány na náměstích, na návsích obcích v blízkosti far a podobně. V Dobřenicích byla školní budova postavena rovněž na významném místě. V blízkosti se nachází kostel sv. Klimenta a zámecký areál. Tyto tři objekty v prostoru spolupůsobí. Školní budova vytváří jasný bod pozornosti. Ve studii výjimečnost této stavby podtrhujeme navrácením detailů secesního tvarosloví fasády smazaného z pragmaticko-ideologických důvodů minulého režimu.
Chtěli bychom, aby budova bývalé školy, nový obecní dům, působil s obnovenou secesní fasádou jako historický klenot. Přístavba a rozšířená školka v zadním traktu by pak měli působit jako jeden dům provedený v současném architektonickém tvarosloví. Jejich atmosféra by měla být civilní a měla by evokovat otevřenost a pocit přijetí. Vstřícnosti by měla napomoci i výrazná pergola překrývající vstup do přístavby a školky stejně tak jako zvolený fasádní materiál, dřevo s povrchovou úpravou a sklo opatřené exteriérovými pohyblivými lamelami umožňující regulaci přístupu denního světla.
Významný potenciál pro vznik kvalitního veřejného prostoru má stávající zahrada za budovou školy. V budoucnu by atmosféra nové zahrady měla být odpočinková a ležérní. Měla by umožnovat mezigenerační setkávání tím, že bude sloužit jak dětem z mateřské školky jako přírodní hřiště v exteriéru, tak dalším věkovým skupinám k relaxaci, setkáním a pořádání akcí pod širým nebem. Zahrada je koncipována jako ve svahu postupně gradující systém rozšiřujících se elips parkových cest obepínající rovné platformy a zatravněné svahy.
Jiří Krejčík, Michal Krejčík, Tereza Novosadová, Katuše Krejčíková, Pavel Chudý
Studie 2025.


















